Подвески для трубопроводов в Бресте

Подвески для трубопроводов предназначены для надежного крепления и поддержки инженерных коммуникаций в промышленных и гражданских объектах. Они обеспечивают правильное позиционирование, компенсацию нагрузок и вибраций, что критически важно для безаварийной эксплуатации систем.

Использование качественных подвесок позволяет равномерно распределить вес труб, предотвратить их провисание и деформацию. Это повышает срок службы всего трубопровода, снижает необходимость в ремонте и минимизирует эксплуатационные расходы.

Мы предлагаем широкий ассортимент продукции, включая жесткие стальные подвески, ленточные регулируемые, опорные хомутовые блоки и балки, а также специализированные решения для крепления одной или двух труб, в том числе с изоляцией. Все изделия соответствуют строгим стандартам качества.

Вы можете выбрать и заказать необходимое крепление онлайн: подвески двух труб на тягах, однорядные подвески с различным основанием, консольные подвески для монтажа к балке и многие другие типы. Доставка по всей Беларуси.

Подвески ПГВ и ПМВ для вертикальных трубопроводов
Цена по запросу
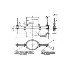
Подвески ПМ2ш и ПГ2ш для горизонтальных трубопроводов
Цена по запросу
Приварные блоки подвесок для горизонтальных трубопроводов
Цена по запросу
Промежуточная подвеска трубы к трубе
Цена по запросу
Хомутовые подвески на опорной балке с проушинами
Цена по запросу
Хомуты для подвесок трубопроводов
Цена по запросу
Хомуты укороченные горизонтальных стальных трубопроводов
Цена по запросу
Показано с 25 по 33 из 33 (всего 2 страниц)